我要收藏
公共资源调用站点
文章分享
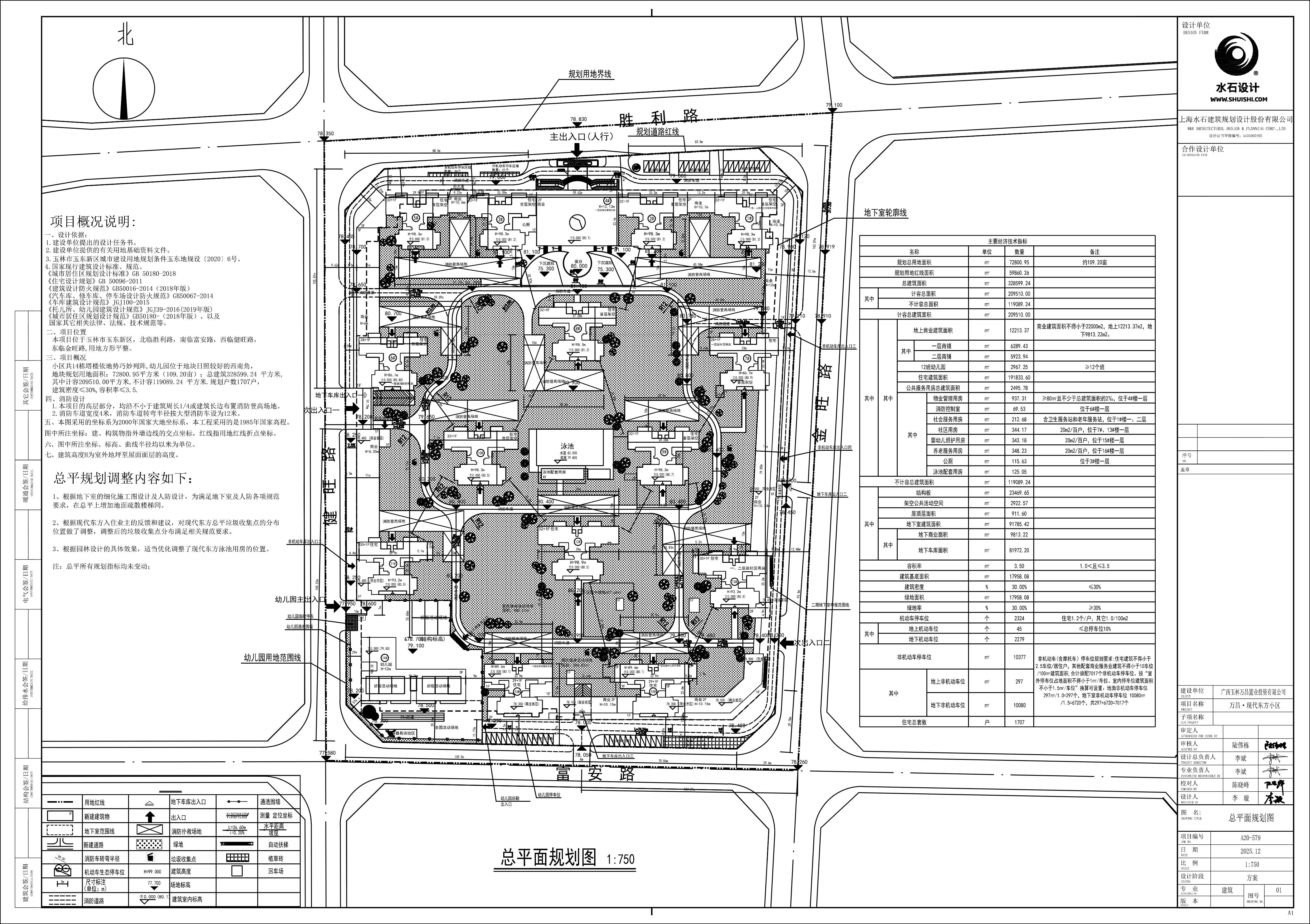
根据广西玉林万昌置业投资有限公司的申请,现对位于玉林市玉东新区胜利路与金旺路交叉口西南侧的万昌·现代东方总平规划调整方案进行公示,公示的内容如下:
一、总平规划方案调整主要内容(详见附图)
1.根据人防设计要求,增加地面疏散楼梯间。
2.调整垃圾收集点平面规划布局,并新增一处垃圾收集点,调整后满足规范要求。
3.调整泳池配套用房的位置。
调整后,规划指标仍满足规划条件要求。拟调整规划方案与原已批准规划方案详见附图,其他规划内容可到公示地点查看。
二、公示时间及公示地点
公示时间:2025年12月22日至2025年12月30日
公示地点:万昌·现代东方项目现场、规划建设和应急管理部公示栏(玉林高新技术产业开发区税务局办公楼1楼)、玉林市玉东新区政务服务中心公示栏及玉林市玉东新区政府网。
三、公众参与
为体现规划审批的公开性和透明性,我部对本次规划方案给予公示。如您对本次规划申请报批的方案有不同意见和异议,请于2025年12月30日前将意见以书面形式(署以真实姓名、联系方式等,并说明理由和原因)递交我部,利害关系人可依法书面向我部申请听证。意见反馈地址:玉林高新技术产业开发区税务局办公楼规划建设和应急管理部5楼规划股,电子信箱:YLYDGJJ@163.com,联系电话:0775-3837037。
四、附图
1.原经审批的万昌·现代东方小区规划总平面图(设计单位:上海水石建筑规划设计股份有限公司;项目编号:A20-579,日期:2022.03)

2.现拟调整的万昌·现代东方小区规划总平面图(设计单位:上海水石建筑规划设计股份有限公司;项目编号:A20-579,日期:2025.12)

3.总平规划调整前后对比图

备注:因机构改革,原玉林市玉东新区建设局已更名为广西玉林高新技术产业开发区管理委员会规划建设和应急管理部。
广西玉林高新技术产业开发区管理委员会
规划建设和应急管理部
2025年12月22日
文件下载:
关联文件: