我要收藏
公共资源调用站点
文章分享
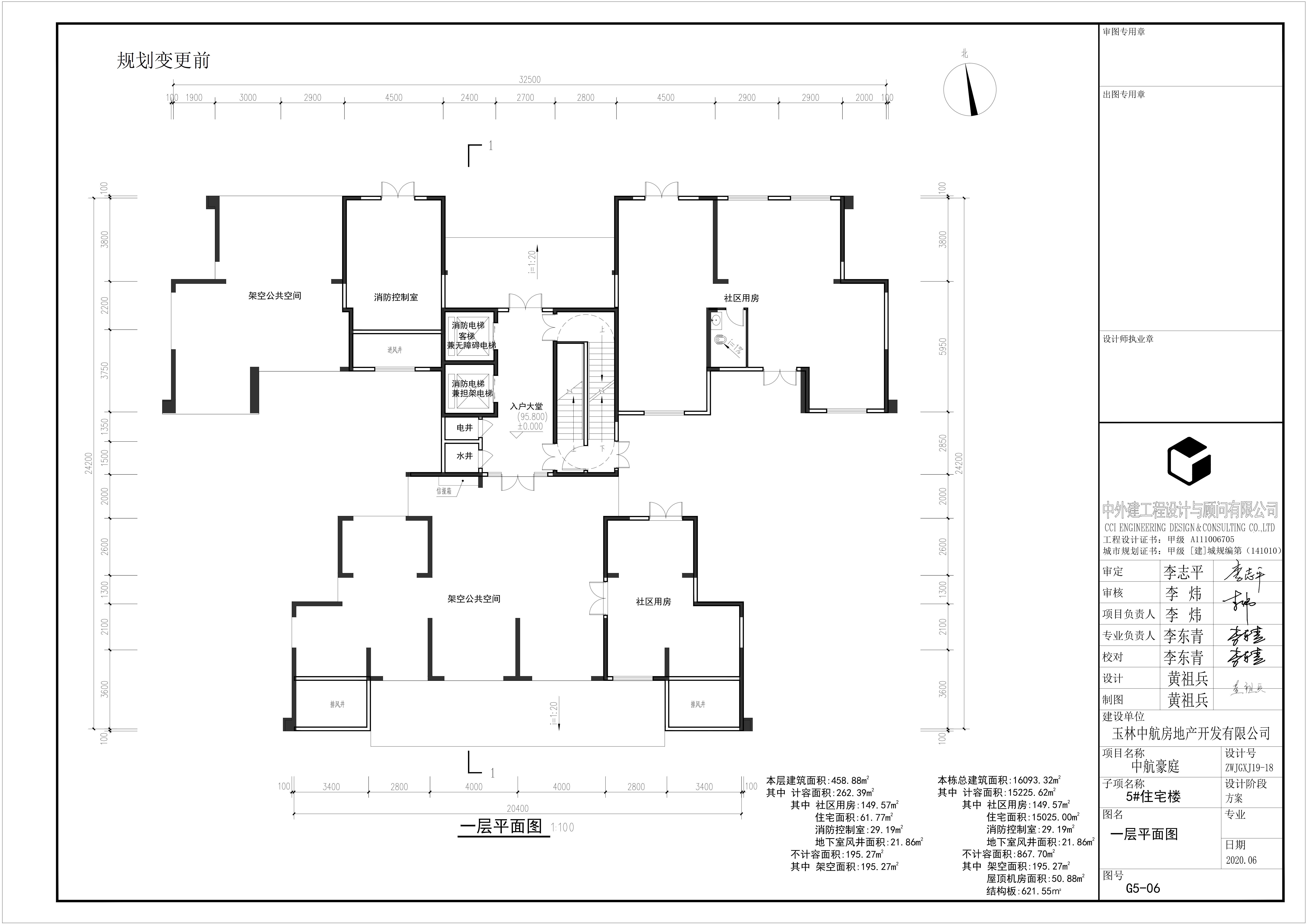
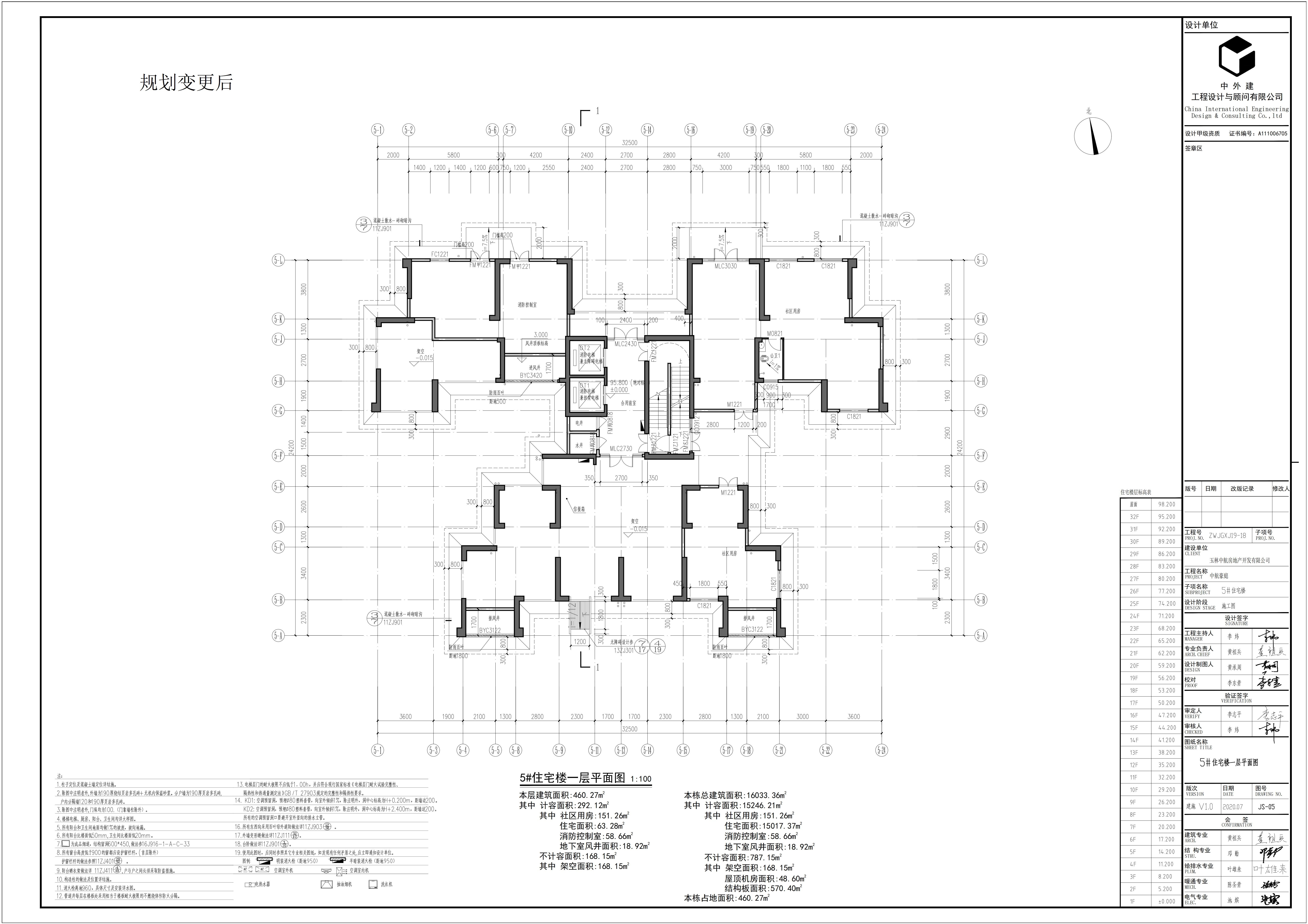
玉林中航房地产开发有限公司申请变更中航豪庭5#楼一层平面建筑设计方案,经审查,变更的内容满足规范和设计文件要求的。按相关法律法规的规定,为保证相关利害关系人的知情权、监督权,我局对该公司开发建设的位于玉林市玉东新区秀水路与阳光路交叉口北侧中航豪庭5#楼一层平面建筑设计修改方案进行公示,公示内容如下:
一、设计变更主要内容(详见附图)
(一)一层社区用房南面“门”与“窗”位置互调。
(二)一层社区用房东面“门”变更为“墙”。
(三)一层架空公共空间位置增加消防控制室。
二、公示时间及公示地点
公示时间:2025年3月26日至2025年4月10日
公示地点:中航豪庭小区、玉林市玉东新区建设局公示栏、玉林市玉东新区政务服务中心公示栏及玉林市玉东新区政府网。
三、公众参与
为体现规划审批的公开性和透明性,我局对本次规划方案给予公示。如您对本次规划申请报批的方案有不同意见和异议,请于2025年4月10日前将意见以书面形式(署以真实姓名、联系方式等,并说明理由和原因)递交我局,利害关系人可依法书面向我局申请听证。意见反馈地址:玉林市秀水路2号玉林市玉东新区建设局6楼规划股,电子信箱:YLYDGJJ@163.com,联系电话:0775-3837037。
四、附图
中航豪庭5#楼一层平面图(变更前后图)


玉林市玉东新区建设局
2025年3月26日
文件下载:
关联文件: